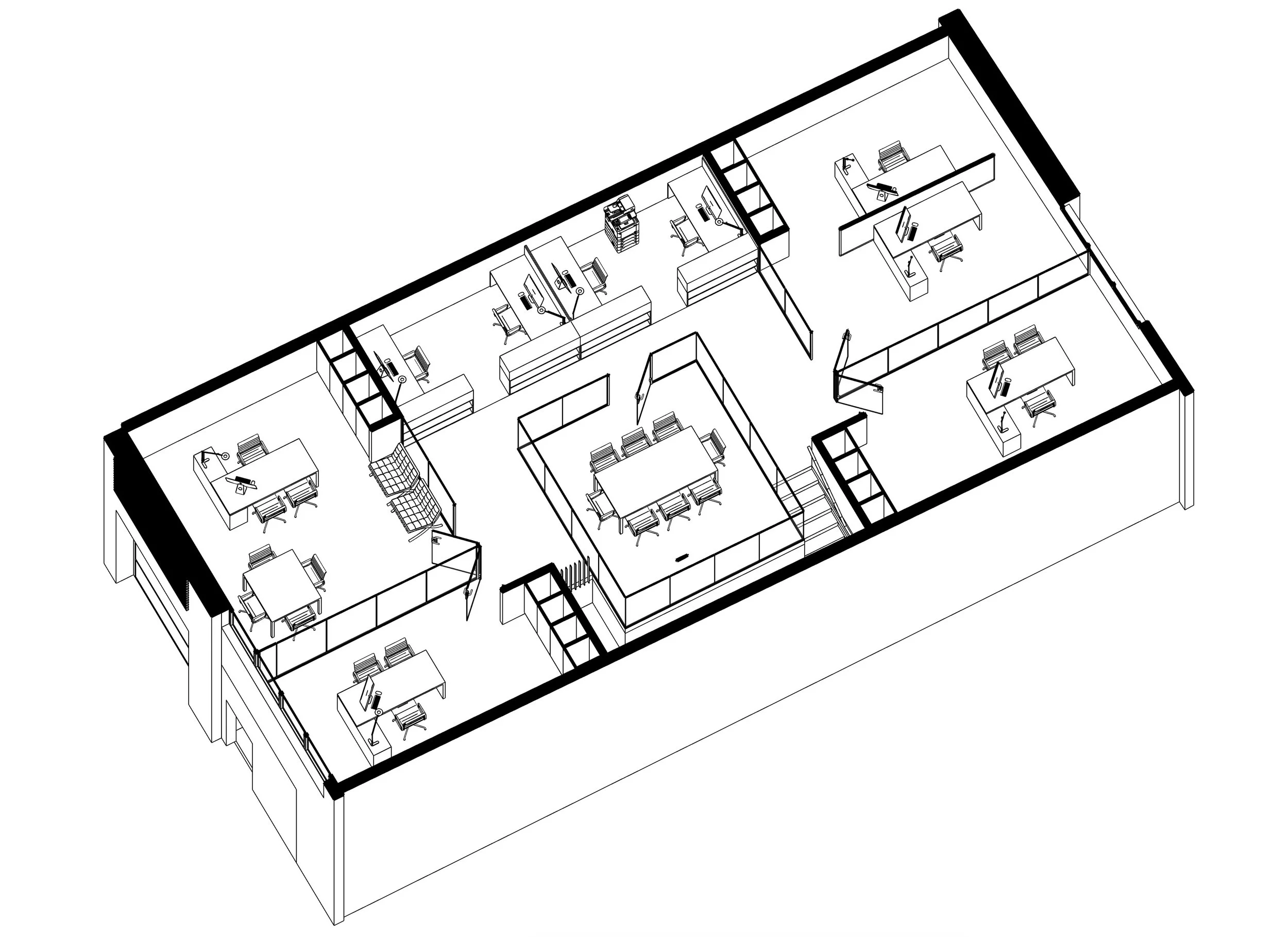
Aménagement d’un plateau de bureaux à Plaisir

  • programme Réhabilitation d’un local en plateau de bureaux

  • lieu Plaisier (78)

  • maître d’ouvrage Privé

  • maître d’œuvre plusfx Architecture

  • mission Complète

  • budget 300.000 €HT

  • surface plancher 160 m2

  • statut Livré en décembre 2022

Précédent
Précédent

Duperré

Suivant
Suivant

Bagnolet